Okazja Lokal handlowo usługowy - Podgórze

Lokal handlowy/usługowy na wynajem
15 000,00 PLN , Pow. 236,56 m2
Drukuj ofertę
Drukuj ofertę
Typ nieruchomości:
Komercyjny
Powierzchnia:
236,56 m2
Typ transakcji:
wynajem
Lokalizacja:
Kraków Stare Podgórze
Piętro:
0 na 4
Numer oferty:
SUP718355
Cena za m2:
63,41 PLN
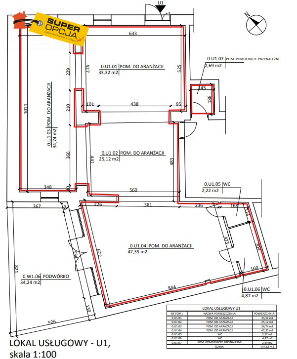
Do wynajęcia powierzchnia handlowo - usługowa na parterze w nowej kamienicy:

LOKAL:
- powierzchnia: 236,56 m2  
- lokal pod gastronomię
- ogródek 34,24 m2 
- stan deweloperski
- parter + piwnica
- możliwość wykończenia pod własne potrzeby
- ogrzewanie miejskie

BUDYNEK:
- wyremontowana kamienica
- winda
- wysoki standard wykończenia
- media w budynku

LOKALIZACJA:
- szybki dojazd do Rynku Głównego
- komunikacja miejska
- 4 min od Ronda Matecznego
- Buma Business Park

Podana cena netto!

Zapraszam do oglądania!
Nieprawidłowy adres E-mail